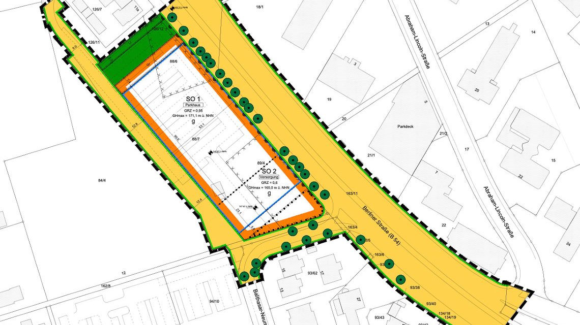
Ein neues Parkhaus und ein Umspannwerk sollen nicht nur den Parkplatzdruck der Berliner Straße mindern, sondern auch die Infrastruktur der Region sichern.
In Wiesbaden drängt die Zeit: Rund um den Helmut-Schön-Sportpark ist die Parkplatzsituation angespannt. Warten ist keine Lösung. Ein modernes Parkhaus weiter helfen, damit dort in Zukunft deutlich mehr Autos parken können. Mit der Neuordnung des Raums soll auch Platz für ein Umspannwerk geschaffen werden – ein infrastrukturell wichtiger Baustein für Wiesbadens Energieversorgung. Damit das Realität wird, braucht es einen neuen Bebauungsplan.
Einblick und Mitgestaltung: So läuft die Planung
Die Stadtverordnetenversammlung hat bereits einen Entwurf beschlossen. Dieser liegt vom an 3. Januar 2025 öffentlich aus. Sowohl im Verwaltungsgebäude in Wiesbaden als auch online können Bürger die Pläne einsehen und kommentieren. Wer sich einbringen möchte, hat bis zum 3. Februar Zeit, eine Stellungnahme abzugeben. Ob per Online-Formular, E-Mail oder sogar per Fax – Wiesbaden bietet viele Wege zur Beteiligung.
Warum das Projekt wichtig ist
Ein modernes Parkhaus erleichtert nicht nur das Leben der Anwohner und Besucher. Es sichert auch die Zukunft des Viertels, indem es Platz für das dringend benötigte Umspannwerk schafft. Dadurch bleibt Wiesbaden auch in puncto Energieversorgung zukunftsfähig.
Wie Sie sich beteiligen können
Bürger haben viele Möglichkeiten, ihre Meinung einzubringen. Über das Online-Beteiligungsformular unter wiesbaden.de/auslegung, per E-Mail an beteiligung@wiesbaden.de oder ganz klassisch per Post und Fax – Ihre Stimme zählt. Wer lieber persönlich Stellung nehmen möchte, kann dies direkt im Stadtplanungsamt tun.
Foto oben © 2025 Planungsamt Wiesbaden / Openstreetmap
Weitere Nachrichten aus dem Stadtteil Bierstadt und Dotzheim lesen Sie hier



Wiesbadener Science Slam im Schlachthof
Arthrose im Knie: Experten zeigen Wege zurück in Bewegung
„Teamwork“ seit 1961: Doris und Joachim Zemke feiern 65 Jahre Ehe
Sperrung der Grillparzerstraße
Städtebauförderung bringt 78 Millionen Euro nach Wiesbaden
Wie sauber ist Wiesbaden? Bürger sehen weniger Müll als gedacht 
